Sedna
-
COLLECTION
Meubles avec plan Béton ciré -
VASQUE
Double vasques posées -
DIMENSIONS
> 160 cm -
TYPE DE MEUBLE
Meubles avec Rangements Complémentaires (colonne, coiffeuse,...) Meubles Suspendus -
PLAN
Béton ciré -
MIROIR
Miroir Simple / Miroir Tablette -
FINITIONS DE MEUBLE
Bois massif
Cette réalisation vous intéresse ?
Demander un devis personnalisé
Finitions
Plan 2 jambages suspendu aspect béton ciré gris « BAHO ».
Caissons tiroirs avec façades Vérone, cotés et dessus en Noyer vernis.
Poignées rectangle chromées.
Porte Serviette Alfa.
Miroir Quattro avec applique Aza.
Armoire d’angle 2 portes Noyer vernis, 5 étagères.
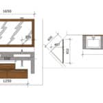
Descriptif et dimensions
- Plan 2 Jambages : larg 1650 x prof 49 x haut 65 cm.
- Plan dessus caissons : larg 125 x prof 49 x ép 2 cm.
- Meuble 2 tiroirs optima : larg 125 x prof 49 x haut 28 cm.
- Plan dessus caisson : larg 50 x prof 49 x ép 2 cm.
- Meuble 1 tiroirs optima : larg 50 x prof 49 x haut 19 cm.
- Mitigeur lavabo Cruise.
- Vasque Squarre céramique blanche 51 x 38 cm.
- Miroir Quattro Noyer : larg165 x haut 36 cm.
- Armoire d’angle : 60 x 60 x haut 170 cm.
Obtenez un devis personnalisé en quelques clics Demander un devis
Découvrez nos réalisations
Les articles
Salle de bain Classique
31•03•14
8 idées de meubles en béton ciré pour votre salle de bain
Lire l’article
Aménagement Salle de Bain
03•04•25
12 exemples de meubles décalés modulaires pour salle de bain
Lire l’article
Meuble Angle Salle de Bain
27•03•14

















